Beschrijving
Uitkijkend over Nederlands eigenzinnigste rivier de IJssel (volgens Huub Stapel*) en vlakbij het centrum van Deventer is dit onlangs gerenoveerde appartement te koop. Het appartement ligt op de derde verdieping van het gebouw. Uiteraard is er een beveiligde parkeergarage met een eigen parkeerplaats en privé-berging in de onderbouw.
Er is een magnifiek uitzicht over de IJssel, uiterwaarden en de historische binnenstad. Geen dag is hetzelfde; de elementen trekken aan je blikveld voorbij. Elk seizoen kent de betoverende schittering van het water waarover vracht- en pleziervaart voorbij glijden.
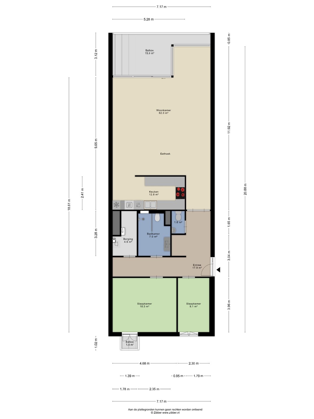
Pothoofd 96 heeft een woonoppervlak van 137 m2 en heeft een ruim, beschut balkon aan de IJssel en een klein balkon aan de Pothoofdzijde. Het ligt op 5 minuten lopen van de bruisende binnenstad met zijn fraaie monumenten, goede winkels, gezellige terrassen, cafés en restaurants, bibliotheek, musea, schouwburg en theater, etc.
De hoofdentree heeft een videofoon installatie en een ruime hal met natuurstenen vloer. Van hieruit is toegang tot de parkeerkelder en de bergingen. De lift brengt ons naar de voordeur op de derde verdieping.
Er is een ruime entree met toilet en garderoberuimte.
De entree gaat over in een gang met daaraan twee slaapkamers, de badkamer en een was-/bergruimte.
De badkamer is in 2024 vernieuwd en uitgerust met een modern wastafelmeubel met laden en een spiegelkast, een inloopdouche en een toilet.
De woonkamer heeft een oppervlak van 63 m2 en is helemaal op de IJssel gericht. Grote ramen over de hele breedte van de kamer bieden een prachtig panorama. Via de brede schuifpui loop je het balkon op waar je een flink deel van het jaar beschut buiten kunt zitten. Een elektrisch zonnescherm zorgt voor de gewenste schaduw.
De halfopen keuken is ook in 2024 vervangen door een luxe, moderne keuken met veel bergruimte en uitgebreide inbouwapparatuur.
Het appartement heeft energielabel A. Het is gasloos en volledig geïsoleerd en heeft HR++ glas. Het binnenklimaat is aangenaam door de overal aanwezige vloerverwarming die op warme zomerdagen ook kan koelen. In 2024 is het appartement gerenoveerd, badkamer en keuken zijn vervangen en de wanden voorzien van nieuw stucwerk.
De appartementengebouwen zijn in 2003 gebouwd naar ontwerp van architect Jo Crepain.
Het fundament is een grote onderbouw met daarin de parkeerkelder, de bergingen en daaromheen de tuinen, de parkeerplaatsen en de entrees van de verschillende woontorens.
In de onderbouw is een grote beveiligde parkeergarage met bergingen en parkeerplaatsen. Bij nummer 96 hoort één parkeerplaats en een ruime berging.
* Huub Stapel heeft een prachtige serie voor televisie gemaakt, genaamd "Langs de IJssel". Zeer de moeite van het (terug)kijken waard.
Maandelijkse VvE bijdrage is € 317,-. De VvE wordt beheerd door Portalis VVE Beheer.