Beschrijving
In 1938 is deze eengezinswoning met drie slaapkamers en een achtertuin gebouwd en dat zie je natuurlijk terug aan de bouwstijl. Wat een oergezellig huis, zo met die erker, de houten vloer en de houtkachel in de woonkamer. Of je die kachel nu wel of niet gebruikt, het staat in elk geval leuk en geeft een knusse sfeer. Zeker op druilerige dagen en die hebben we nog wel eens in Nederland. Kijk dat is dan een bruggetje naar de reden dat dit huis te koop is, de eigenaars pakken hun boeltje op en vertrekken naar het zuiden!
Dat is jouw kans om in het bezit van deze goed onderhouden woning te komen. Kom vooral kijken!
Dit huis maakt je vrolijk. Als je binnenkomt sta je in een hal met zonnig geel geschilderde lambrisering met wit stucwerk daarboven. Net als in de woonkamer ligt ook hier al die mooie warme houten vloer.
De woonkamer is 25 m2 heeft behalve al die leuke dingen als een erker, een houten vloer en een gezellige gaskachel, ook nog openslaande tuindeuren naar de achtertuin. Over ongeveer twee maanden is het hier prachtig versierd door de Wysteria, of anders gezegd door de Blauwe Regen die over een pergola groeit. De tuin is goed afgesloten met een tuinhek en via de poortdeur kom je in het achterpad. Er is een fietsenschuur, plaats voor je containers, een speelhuisje en dan blijft er nog genoeg ruimte over voor een flinke picknicktafel. Je kunt ook via de aangebouwde keuken naar buiten. De inrichting van de keuken is al wat ouder, maar door het kleurgebruik valt dat eigenlijk niet op. Er is een gasfornuis, een afzuigkap, een vriezer, een koelkast en een vaatwasser.
Op de eerste verdieping zijn twee slaapkamers en een goede badkamer. Mooie, strakke betegeling, goed en fris sanitair, mooi wastafelmeubel, zelfs vloerverwarming! Je hoeft hier echt helemaal niks aan te doen. Je wasmachine kan je hier ook kwijt.
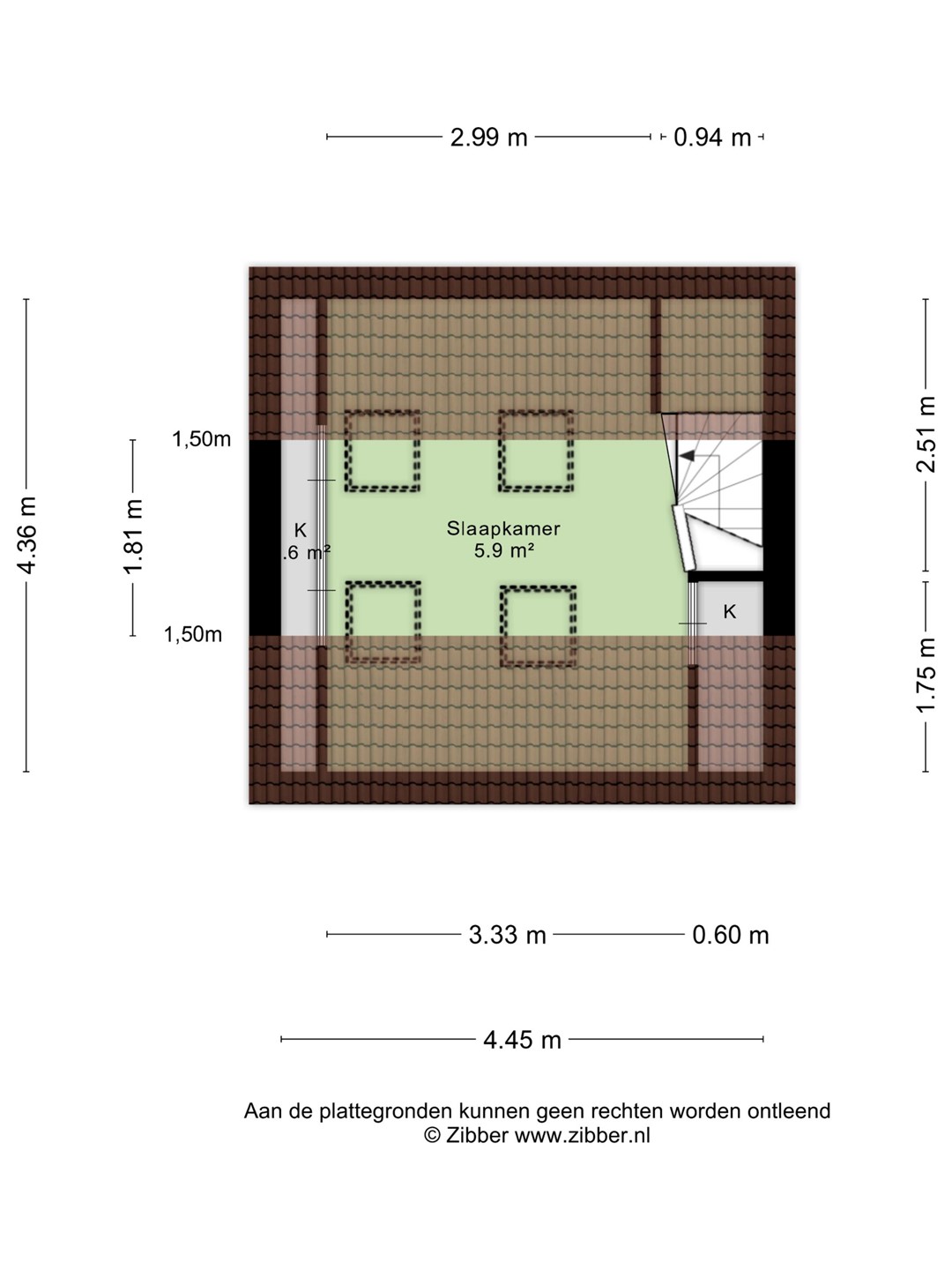
Via de vaste trap naar de tweede verdieping kom je in slaapkamer 3. Onder een goed geïsoleerd dak met veel dakramen is het goed slapen. De eigenaar heeft oude kastdeuren zonnig geel geschilderd en daar een hele leuke kastenwand mee gemaakt. Hier boven is ook een ruimte voor de CV ketel.
We hebben speciaal voor de verkoop een energielabel laten maken en daar is een knappe C uitgekomen. Dit pas geschilderde huis heeft overal HR+ glas, vloer en dakisolatie en zo houdt je je energieverbruik netjes in de hand.
Samengevat bieden we een sfeervolle eengezinswoning aan met een tuin waar vanaf een uur of één de zon in valt totdat 'ie ondergaat. Fijn om vast te weten nu het tuinseizoen nog niet erg is aangebroken. Kom snel kijken, wie weet is dit het huis waar jij gaat wonen!