Beschrijving
Deze leuke tussenwoning ligt in de woonwijk Zandweerd, de wijk net buiten het centrum die langs de IJssel is gebouwd. Het voordeel daarvan is dat je lekker snel bij de IJssel bent voor een verfrissende wandeling, maar ook dicht bij het station bijvoorbeeld. Het is een heel prettig huis dat onlangs een nieuwe badkamer en toilet heeft gekregen.
De Jacob van Deventerstraat is een zijstraat van de Zwolseweg. Aan de overkant van de straat ligt Basisschool de Adwaita waar kleuters en de onderbouwkinderen naar school gaan. 's Avonds en in het weekend heb je hier dus geen overburen, best fijn eigenlijk.
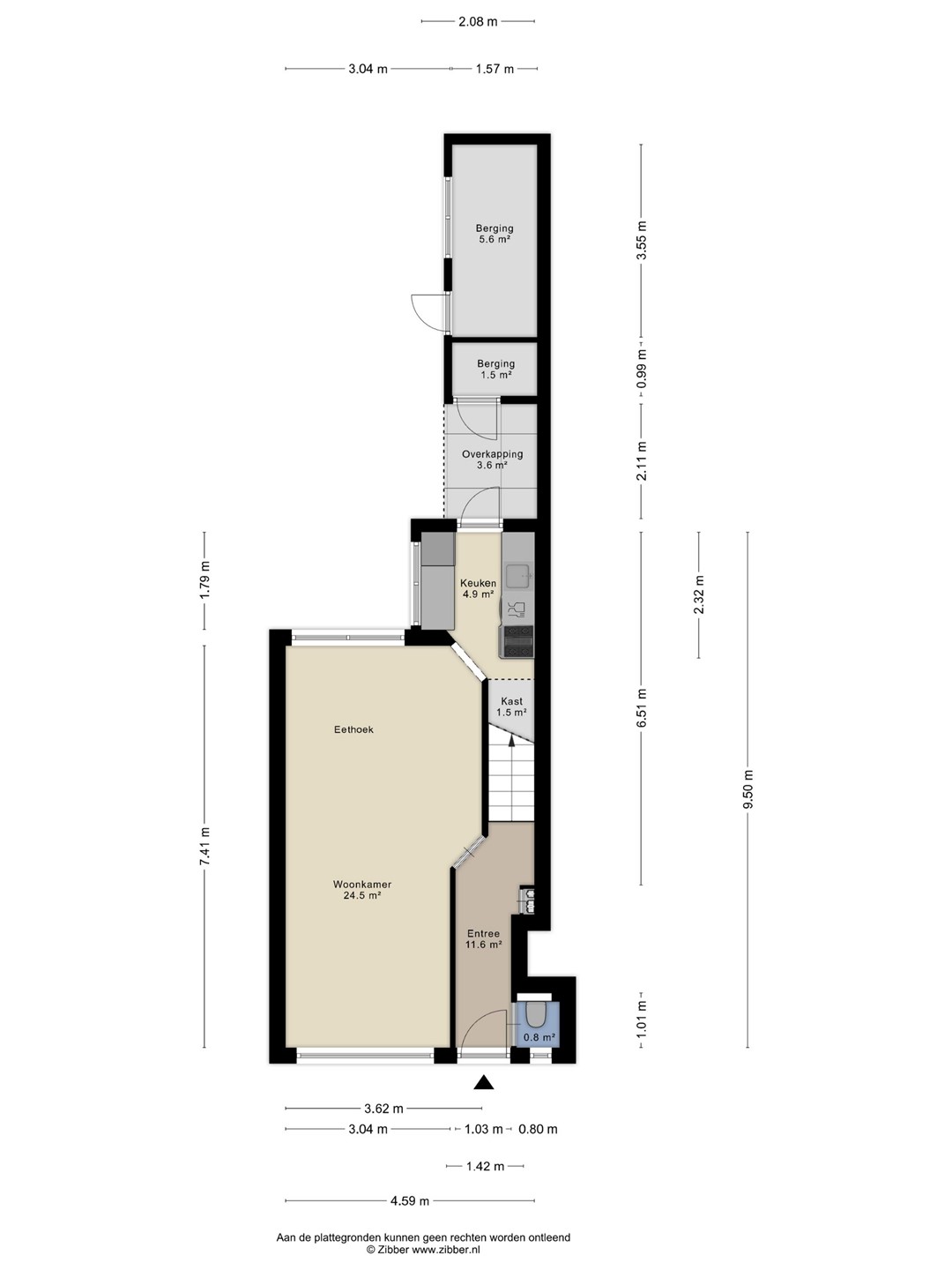
In de hal ligt een leuke tegelvloer en hier is ook het in 2024 vernieuwde toilet. De deur naar de woonkamer is een moderne deur met veel glas. Als je de woonkamer binnenkomt is het aangenaam licht doordat er ook aan weerszijden van de kamer grote ramen zijn. Aan de achterkant van het huis is de halfopen keuken met een superfunctionele inrichting. De bestaande keuken heeft in 2023 nieuwe inbouwapparatuur gekregen en de naast gelegen bergkast is een open kast geworden die de keuken veel praktische bergruimte oplevert. Ook hier weer veel ramen en een deur naar de achtertuin.
Op de eerste verdieping vind je een overloop met twee goede slaapkamers. De badkamer is, net als het toilet beneden, ook in 2024 vernieuwd. Het is een heerlijk frisse badkamer geworden met een dubbel wastafelmeubel, een inloopdouche, een toilet en, verstopt achter een scheidingswand, kan je je wasmachine plaatsen.
Een vaste trap naar de tweede verdieping brengt je naar de zolder waar een fijne ruimte is ontstaan doordat er een grote dakkapel is geplaatst. Deze ruimte doet nu dienst als "master bedroom" en ook is er heel veel bergruimte achter de knieschotten. Er is een aparte kast waarin de C.V. ketel hangt.
De achtertuin ligt op het zuiden en heeft een achterom. Er is een stenen schuur (die graag nieuwe dakbedekking wil) en een fijn terras waar je een flinke tafel kwijt kunt om met je vrienden te tafelen als het lekker weer is.
Op loopafstand vind je verschillende supermarkten, de bakker, de apotheek en de dierenarts. En dat is slechts een greep uit de voorzieningen die deze wijk heeft. Kom gewoon kijken, dat kan je zelf zien wat een fijn huis het is dat ook nog in een fijne woonomgeving ligt!