Beschrijving
Verrassend ruime en sfeervolle jaren ’30 woning met karakter en een 10 meter diepe stadstuin.
Aan de ventweg van de Diepenveenseweg, uitkijkend op een groene strook met volwassen bomen staat dit heerlijke familiehuis vol mogelijkheden. Met 135 m² woonoppervlak, een inhoud van bijna 500 m³ en een royale tuin.
We beginnen al met een aantrekkelijke voorgevel met een knipvoeg en een erker op de verdieping. Dan is er die verdiepte liggende voordeur in een portiek dat versierd is met vertandingen in het metselwerk. Hoera, in de hal ligt nog de originele granitovloer. Hier vind je de kelder en het toilet. In de lichte kamer-en-suite komen de authentieke details prachtig naar voren: hoge plafonds, de klassieke schuifdeuren en zowel in de voor- als in de achterkamer een schouw. De oorspronkelijke wand tussen de achterkamer en de keuken is weggehaald, waardoor er nu een open keuken is. De keuken heeft een wat verouderde inrichting, maar is nog wel functioneel. Ga je meteen voor een nieuwe keuken of kijk je het eerst nog even aan?
In de achterkamer brengen openslaande tuindeuren je direct naar de zonnige stadstuin. De tuin biedt veel privacy en is bovendien heel onderhoudsarm aangelegd. Optimale terrasruimte maar ook schaduw en groen van de dakplataan en de planten. Naast de houten schuur is een pergola begroeid met blauwe regen en ook de tuinpoort om achterom te komen met je fiets.
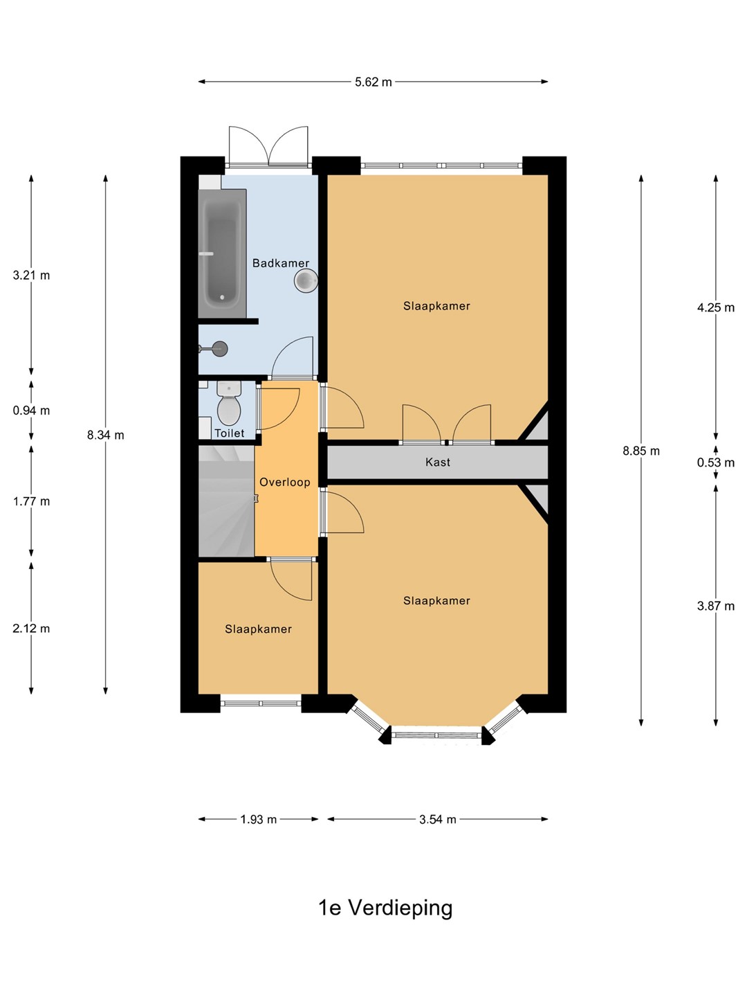
Op de eerste verdieping zijn drie slaapkamers: twee grote kamers met eigen schouw en inbouwkasten en een kleinere kamer die zich uitstekend leent als werkkamer of kastenkamer. Ook heel fijn: aan de overloop grenst een apart toilet. De badkamer is uit dezelfde periode als de keuken en heeft een ligbad, een douche en een wastafel. De badkamer heeft flinke ramen en persoonlijk vind ik dat wel een echte plus; lekker veel licht!
De tweede verdieping biedt nog eens twee ruime slaapkamers, beide met een dakkapel én een royale berging waar je moeiteloos koffers, sportspullen of kampeermateriaal kwijt kunt. Op de grote overloop is er de aansluiting voor de wasmachine en droger .
Als je graag snel lopend of met de fiets bij het NS-station wilt zijn is deze locatie echt heel goed. Het ligt namelijk om de hoek en binnen vijf minuten fiets je naar de bruisende binnenstad van Deventer. Alle dagelijkse voorzieningen zoals scholen, supermarkten en winkels bevinden zich in de buurt. Heb je een hond? Het Rijsterborgherpark is snel bereikbaar voor de korte loopjes en wil je echt lekker de natuur in, je weet het vast al, rondom Deventer zijn bos en uiterwaarden heerlijke plekken om de benen eens goed te strekken.
Kom het het met eigen ogen bekijken, we leiden je graag rond.