Beschrijving
Deze prachtige hoekwoning met voor- en achtertuin staat in een rustige, groene straat in de wijk Zandweerd. Het bouwjaar is 1932, vandaar de kenmerkende dakoverstekken, het inpandige balkon, kleurrijk glas in lood en de prachtige voordeur. De woning is gemoderniseerd en verduurzaamd, zelfs tot energielabel A. Fotografie en video voor de woningpresentatie zijn verzorgd door de dochter des huizes met zowel winter- als zomerbeelden. De huidige bewoners willen hiermee de bijzondere sfeer goed overbrengen.
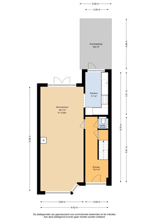
Kom binnen in de ruime, betegelde hal via de met glas in lood omlijste voordeur. Onder de trap twee paneeldeuren, één geeft toegang tot het toilet en de ander naar een flinke kelder. Het hele huis is overigens voorzien van paneeldeuren en retro deurbeslag. De woonkamer is een voormalige kamer en suite van 35 m2 en heeft een erker met glas in lood in de bovenramen. De kamer is heel sfeervol door de mozaïek gelegde parketvloer en de openslaande tuindeuren. In het midden staat een cv-houtkachel die een comfortabele warmte verspreidt en ook nog bespaart in de stookkosten. De keuken heeft een robuuste uitstraling: een betonnen aanrecht en houten lades met veel bergruimte. Centraal in de keuken staat het Boretti gasfornuis met vijf gaspitten en twee ovens.
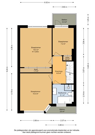
Op de eerste verdieping zijn drie slaapkamers, waarvan er twee met een ingebouwde kast. Bovendien hebben twee van de drie slaapkamers een balkon. De functionele badkamer is blauw/wit betegeld en voorzien van een wastafelmeubel, een inloopdouche, een ligbad en een toilet.
De flinke ruimte die dit huis te bieden heeft wordt op de tweede verdieping nog extra goed zichtbaar. Er zijn hier twee kamers, die momenteel zijn samengetrokken tot een royale zit- en slaapkamer. Mocht het nodig zijn dan is deze ruimte eenvoudig weer terug te brengen naar twee aparte kamers. Op de overloop is een praktische ruimte voor de wasapparatuur, ook bevinden zich hier de cv-ketel en de omvormer voor de 10 zonnepanelen die op het dak liggen. Tot besluit is er onder dit goed geïsoleerde dak ook nog een ruime berging en zijn er voor overige opslag rondom knieschotten aanwezig.
Deze hoekwoning heeft een paar jaar geleden een nieuwe groene tuinaanleg gekregen met mooie waaltjes, elektra op verschillende plekken, een buitendouche, een kleine vijver en een fijne
terrasoverkapping meteen achter de keuken. Er staat achter in de tuin een rietgedekt tuinhuisje. De tuin ligt op het zuidwesten en is 20 meter diep. Het achterpad wordt tevens door de naaste buren gebruikt en kan worden afgesloten.
Van dit huis word je blij, het heeft nog zoveel kenmerken van de geliefde jaren dertig en is toch supergoed verduurzaamd. Dan staat het ook nog eens in één van de meest geliefde straten van de wijk Zandweerd! Vlakbij scholen, een grote speeltuin, winkels, het station en met vijf minuten fietsen ben je in de binnenstad. Fiets je de andere kant op dan ben je ook zo op de IJsseldijk richting Olst. De straat is ruim opgezet en heeft aan weerszijden bomen die voor schaduw zorgen in warme zomers. Onlangs is de bomenkapper langs geweest en zijn de kruinen gekortwiekt. Geen zorgen, dit type boom is een snelgroeier, dus het groen zal snel weer terugkeren in de straat. Wil je alvast zien hoe dat eruitziet? Kijk maar eens op Google Maps.
Ben je enthousiast geworden? Bel ons dan voor een bezichtiging, we geven graag een rondleiding.