Beschrijving

Op een werkelijk unieke plek aan de IJssel ligt al eeuwen dit monumentale vrijstaande dijkhuis met de bijbehorende bakstenen doorrijschuur. Het bijzondere schuilt in de ligging, maar zeker ook in het het huis. Vanaf de straat gezien lijkt het een eenvoudige boeren woning, maar schijn bedriegt. Het huis heeft een interne verbouwing ondergaan die een heel mooi contrast laat zien tussen de moderne, ruimtelijke binnenkant en de monumentale buitenkant. Het huis staat trots boven aan de dijk en dat geeft een fenomenaal uitzicht over het rivierenlandschap van de IJssel. De grote, moderne ramen in de eeuwenoude bakstenen achtergevel zorgen ervoor dat de wisselende seizoenen aan je voorbij trekken terwijl je binnen aan tafel zit.
In lang vervlogen tijden deed de voormalige boerderij ook dienst als herberg. Bij de herberg hoorde de bakstenen doorrijschuur met grote inrijdeuren aan weerszijden van de gevels. De doorrijschuur is er nog steeds en ook hierin tref je een bijzonderheid: naast de zeer ruime schuur/garage bevat dit prachtige gebouw twee complete appartementen met een eigen tuin! De mogelijkheden zijn legio: werken aan huis, ambachtelijk bedrijf, bed & breakfast, atelier, gastenverblijf, u zegt het maar!

Het huis.
De entree is aan de zijkant van het huis, zoals gebruikelijk in het buitengebied wordt ook in dit huis de "officiële" voordeur bijna niet gebruikt. Schop je klompen aan de kant en trek je pantoffels aan.
Hier binnengekomen zie je een open woonlaag waarvan de verschillende ruimten met elkaar in verbinding zijn gebracht. 
De zitkamer, de eetkamer, de keuken en de hal, er zijn overal doorkijkjes waardoor je de bijzondere, wat stoere inrichting van de individuele ruimten steeds vanuit een andere hoek ziet. Deze ingrijpende verbouwing van een ouderwetse "hokjes indeling" naar een loftgevoel, is gedaan met respect voor het verleden. De haarden, de hoge plafonds, sommige delen van oude wanden de er nog staan, het maakt dat je je nog kunt voorstellen hoe het vroeger geweest moet zijn (en ben je blij dat het nu is zoals het is).
De keuken is modern ingericht met hoogwaardige NEFF inbouwapparatuur en een kookeiland midden in de ruimte. De oude deuren geven toegang tot een recent vernieuwd, houten terras. Vanaf dit terras kan je de hier aangeplante hobbywijngaard zien met heerlijk Rieslingdruiven.
De lichte woonkamer heeft als centraal punt een stoere, stalen houtkachel. Het staal van de kachel, de ruige betonvloer en de strakke witte wanden zijn een mooie combinatie van natuurlijke materialen. De eettafel staat bij de grote aluminium ramen in de achtergevel. Hier zal je de meeste tijd doorbrengen, omdat dit plekje het meest fantastische uitzicht biedt.

Tussen de hal en de eetkamer zijn twee open trappen, één naar de kelderverdieping en één naar de eerste verdieping.
De eerste verdieping heeft dezelfde frisse en moderne sfeer als de begane grond. Aan de grote, lichte overloop grenzen drie slaapkamers, een waskamer en de badkamer. Vanuit je bed kijk je uit over de uiterwaarden waar de watervogels foerageren en de aken langzaam voorbij glijden met hun vracht.
De kapconstructie is zoveel mogelijk in het zicht gelaten. De combinatie van het blanke hout van vloeren en balken met het witte stucwerk is bijna sereen en geeft de kamers een rustige sfeer.
De badkamer is ruim, heeft vloerverwarming, een dubbel wastafelmeubel, een inloopdouche, vrijstaand ligbad en een toilet. Badkamers worden meestal niet geroemd om hun uitzicht, maar dit geval is uitzonderlijk. Naast een heel mooi interieur is hier ook die mooie natuur waar je op uitkijkt. Wellness pur sang!

Vanaf de weg kan je niet zien dat er in de dijk nog een woonlaag is, die zie je pas vanuit de tuin. Een enorme kelder van 67 m2 met verschillende ruimten en een plek voor de CV-ketel. Een oude deur geeft toegang tot de tuin, die ogenschijnlijk oneindig groot is.

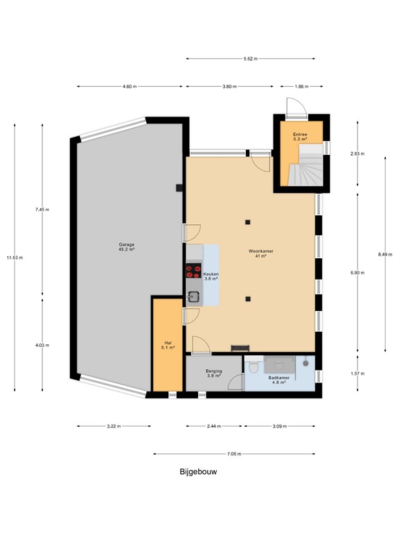
De doorrijschuur.
Bij de herberg behoorde de bakstenen doorrijschuur met grote inrijdeuren aan weerszijden van de zijgevels. De naam werd voor het eerst vermeld in 1606 als het Blockhuijs, vermoedelijk duidt dit op een versterkt huis als controlepost langs de dijk en de IJssel. (bron: beschrijving monument Gemeente Voorst). Fascinerend, eeuwen geleden stond dit gebouw hier al en nu doet het dienst als schuur/garage (45 m2) en zijn er twee appartementen in gebouwd die samen een woonoppervlak hebben van 132 m2. Met een complete inrichting en een eigen terras zijn ze ideaal om te verhuren als recreatiewoning, B&B, of misschien heb je wel een kind dat zelfstandig wil wonen maar nog niet echt de deur uit gaat. De doorrijschuur kan ook bestemd worden als bijvoorbeeld een boerderijwinkel. De unieke situatie van een woonhuis samen met deze multifunctionele doorrijschuur bied je de mogelijkheid je dromen te laten uitkomen.

Waterschap Vallei en IJssel is de eigenaar van o.a. de dijken in deze regio en geeft aan diverse dijkbewoners grote- en kleine percelen in bruikleen. Een klein deel van de tuin is ook in dit geval eigendom van het Waterschap, het gaat hier om een perceel van 128 m2 dat tegen de dijk aan ligt en een kleine parkeerstrook van 13m2 langs de weg. Deze oppervlakte is niet meegeteld in het vermelde perceeloppervlak en de bruikleenovereenkomst wordt door het Waterschap voortgezet met de nieuwe eigenaar.

Dit prachtige gebied word beschermd door de Wet Natuurbescherming, wat inhoud dat er beperkingen zijn ten aanzien van bijvoorbeeld de inrichting van de tuin. Die moet passend zijn in het IJssellandschap.

Er is nog volop ruimte om dit object verder vorm te geven. Er is bijvoorbeeld al een vergunning verleend voor het realiseren van een veranda en een tuinschuur. 

Als je wilt komen kijken, houdt er dan rekening mee dat de Bandijk momenteel is afgesloten vanwege de aanleg van verkeersdrempels en andere verkeersmaatregelen. In 2026 gaat de weg weer open en zal de maximum snelheid voor dit deel van de weg 30 km per uur zijn. Het nabij gelegen gemaal wordt eveneens verbouwd. In het voorjaar van 2026 zal hier een Ciderie geopend worden waar lokaal geproduceerde cider verkocht wordt.

Wij informeren je graag en geven met veel plezier een rondleiding aan geïnteresseerden. Welkom!

Kenmerken