Beschrijving

Als het je gaat om een bijzonder huis op een bijzondere plek in Deventer, dan moet je nu echt even opletten en goed wakker zijn.

Al honderden jaren staat dit prachtige stadspand aan de Nieuwe Markt in Deventer, aan de voet van de Lebuïnuskerk. Het is dan gelukkig ook een beschermd Rijksmonument. Uit pure liefhebberij hebben de huidige bewoners een mooi overzicht van de historie voor je geschreven, dat aan deze tekst is toegevoegd.

Recent hebben de Lebuïnus pleinen, waaronder de Nieuwe Markt, een grondige renovatie ondergaan waardoor de omliggende panden in volle glorie tot hun recht komen. Wonen in dit huis betekent dat je de volgende bewaarder bent van een prachtige deel van de Deventer historie. De beloning daarvoor is genieten van het huis, de locatie en de buitengewoon prettige woonomgeving (leuke buren). Bijzonder van dit huis is dat het een eigen terras heeft achter het huis, grenzend aan de ook net gerenoveerde middenschip van de Mariakerk. 

Als je op het plein staat en de gevel bekijkt, zie je de lijstgevel met daarin de metershoge ramen met roedeverdeling. De begane grond heeft zo'n hoogte, dat er een tussenverdieping is. Kom binnen, in de hal met een vestibule. De hal heeft garderobe ruimte en een modern toilet. Hier is ook de trap naar de verdieping. 
De woonkamer is licht, heeft een imposante schouw waar overigens niet in wordt gestookt. Op de vloer ligt een massief eiken visgraatvloer met daarop een whitewash afwerking. De Franse spiltrap is geplaatst als extra trap toen er in het verleden nog een B&B in het pand gevestigd was en de eigenaars van het pand daarboven woonden. De liefhebber zou weer B&B kunnen voeren.

De woonkeuken is aan de achterkant van het huis en kan met schuifdeuren worden afgesloten. Hier tref je een goed uitgeruste, moderne keuken met een spoeleiland en inbouwapparatuur. Openslaande deuren naar je eigen terras onder een Gotische boog en grenzend aan misschien wel het oudste deel van de stad. Heel uniek. 
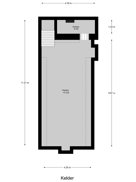
De keuken geeft toegang tot een badkamer met wastafel, toilet en wasmachineaansluiting. De gewelfkelder is via een stevige houten trap te bereiken. Het is een functionele ruimte met een fraai beschilderde zand/cementvloer. Door een vernuftige pomp en klimaatbeheersing is deze ruimte echt van toevoegde waarde.

Via de hal gaan we naar boven en komen op de tussenverdieping die als tweede woonkamer wordt gebruikt. De vide geeft een mooi uitzicht op de zitkamer beneden en op het plein.

Op de tweede verdieping zijn twee kamers die nu samengetrokken zijn als slaap- en kleedkamer. De kleedkamer heeft een wastafel met warm- en koud water. Ze zijn eenvoudig weer te scheiden als je liever twee aparte kamers hebt. Op deze verdieping is ook de badkamer. Deze is van compacte afmeting en volledig uitgerust met een douche, wastafelmeubel en een toilet.

De derde verdieping is een prachtige zolderruimte waar je tot in de nok van de kap kunt kijken. Oude balken zijn gecombineerd met de vernieuwde en geïsoleerde kap waarin dakramen zorgen voor extra licht. Deze zolder is door de combinatie van (heel) oude en nieuwe materialen, de opstapjes en bijzondere hoekjes, een heel fijne verdieping voor verschillend gebruik. Er zijn nu twee grote kamers, waarvan er een een (slaap)vide heeft. 

De officiële omschrijving in het monumentenregister luidt als volgt: "Onderkelderd huis met geverfde lijstgevel. Een geleding in de lijst overeenkomend met de vensterindeling van de topverdieping. Hijsbalk. Middenvenster zolderverdieping geflankeerd door twee pakhuisluiken. Strekken. Hoge pui met schuiframen; voordeur met bovenlicht en deurkalf met tandlijstje. XVII-XVIII."

Bedenk bij het bovenstaande dat niet alleen het pand, maar ook de ligging uniek is. De Nieuwe Markt is een plein waaraan een mooi assortiment bedrijvigheid is gecombineerd met wonen. Je vindt hier Restaurant het Arsenaal en St. Maxime, Galerie Van Blijkshof, Museum Eicas en Film/Theater Mimik is om de hoek. Carlos in huis, die prachtige interieurzaak is dichtbij en je makelaar is recht tegenover het pand gevestigd, ook altijd handig. 

Wij willen geïnteresseerden in dit bijzondere pand graag rondleiden, welkom op de Nieuwe Markt!

Nieuwe Markt 29 Deventer (geschreven door de eigenaren anno 2026) 

De plek: het begin van Deventer 
Hoe bijzonder is het om te wonen in de noordbeuk van de dertiende-eeuwse Mariakerk - de kerk voor het volk die tegen de Lebuïnuskerk  werd aangebouwd!  Die Lebuïnuskerk was waarschijnlijk de derde versie met deze naam na twee eerdere houten versies, ongeveer op dezelfde plaats: het allereerste begin van Deventer na de aankomst van de Engelse priester Lebuïnus met zijn gevolg, in de achtste eeuw. Hij bracht de kerstening op gang van de Saksische bewoners van de zandduinen langs de IJssel. 
In het huidige Noordenbergkwartier (tegen de Nieuwe Markt aan) kwam de eerste Deventer economische ontwikkeling op gang, met een centrale rol voor de handel via de IJssel, vooral in vis. Het was de bloeitijd van het Hanzeverbond, waarin de IJssel en Deventer een belangrijke rol speelden. De bewoners gingen ter kerke in de Mariakerk, in de schaduw van de deftige Lebuïnuskerk.  

Bisschop van Utrecht 
De bisschop van Utrecht was in de middeleeuwen hier de baas. In Deventer trachtte hij zijn imperium overeind te houden tussen de aanvallen van de Noormannen waarvoor hij was gevlucht uit Utrecht, en zijn rivaal in het bisdom van 
Munster, aan de andere kant van het moerassige gebied dat nu Twente heet.  
De Utrechtse bisschop woonde in zijn paleis (“palts”) ongeveer op de plek van het huidige Hegiusgebouw waarin ook het museum voor zero-kunst EICAS is gevestigd. Voor zijn paleis bevond zich een hof - een soort tuin waar onder andere kruiden werden verbouwd, op de plek van de huidige Nieuwe Markt: niet voor niets vervolgens de markt voor groenten, kruiden en fruit.  De bisschop en zijn deftige gevolg hadden vanaf de Bisschopshof een eigen doorgang naar de kerk, ter hoogte van het pand nr 24 (naast Carlos in Huis).  
In deze omgeving gold het recht en de rechtspraak van het bisdom, het uiterst bescheiden openbaar bestuur had weinig meer in te brengen dan lege briefjes. In het gebied rondom de kerk woonden overigens vooral geestelijken, zoals 
kanunniken. 

Geestelijk centrum 
Maar de tijden veranderden: in de zestiende eeuw zorgde de reformatie voor een radicale omwenteling. Die was in Deventer al ingezet door Geert Groote, met zijn ‘moderne devotie’. Groote zette zich in voor het gewone volk en stelde rijkdom en uitspattingen van de klassieke Roomse kerk aan de kaak. Hij kreeg met zijn beginselen grote bekendheid, wat ervoor zorgde dat van heinde en verre denkers - waaronder Erasmus - in Deventer kwamen studeren. Alles over Geert Groote is te vinden in het aan hem gewijde museum op 3 minuten loopafstand van de Nieuwe Markt. 

Afbraak noordbeuk Mariakerk 
Het gevolg van de reformatie was dat het officiële bestuur zich ook bekeerde en de Lebuinus kerk tot zijn centrum maakte. De meer volkse Mariakerk - waar het katholieke geloof nog beleden kon worden - kreeg nauwelijks nog middelen voor onderhoud van het gebouw, dat dan ook snel in verval raakte. De gevolgen van een grote brand werden niet hersteld en toen het dak instortte werd besloten de noordbeuk af te breken. De zuidbeuk grensde aan de Lebuinuskerk en kon blijven staan, evenals het Sacramenthuisje (momenteel deel van restaurant Het Arsenaal). 
Waar de noordbeuk had gestaan kwam een rijtje van zes huizen: een middeleeuwse vorm van projectontwikkeling, zoals blijkt uit een bewaard gebleven opdracht aan de stadstimmerman.  Het huis dat momenteel nummer 29 heeft kwam gereed in 1614. Het is waarschijnlijk gesitueerd op de plaats waar vroeger een belangrijke kapel was, getuige de nog altijd fier overeind staande gotische boog. Met de stenen van de af te breken Noordbeuk werd een nieuwe straat worden aangelegd: de Hofstraat.  

Klaar in 1614 
In 1614 werden de nieuwe huizen (koopmanshuizen/pakhuizen) in gebruik genomen. Het huis nummer 29 vormde een geheel met dat links ernaast, wat je nog kunt zien aan de vroegere brede deur op nr. 28, bestemd voor een wagen of 
koets, wonen en werken vond destijds immers onder een dak plaats. De Nieuwe Markt was altijd een plek voor handel (vooral in groente en fruit) en logementen voor kooplieden van elders (zie aan de overkant de Poort van Kleef) en het huis rechts, nr 30 was nog tot een halve eeuw geleden een hotel. Over nummer 29 wordt gezegd dat er een bakkerij in was gevestigd (het bakkerijmuseum in Hattem laat een identieke situatie zien, met name op de essentiële bovenverdieping), maar er lijkt later een slagerij te zijn gevestigd. In het museum De Waag hangt een schilderij van de Nieuwe Markt waarop valt te zien dat in het pand “kruidwaren” werden verkocht: een kruidenier dus. Nog later woonde er de organist van de Lebuinuskerk (met zijn gezin met acht kinderen), die in het pand een muziekschool had. 

Bombardement 1945 
Aan het einde van de tweede wereldoorlog, raakte een groot bombardement de Nieuwe Markt. De bommen waren door de geallieerden bestemd om de Wilhelminabrug te vernielen en zo de terugtrekking van de Duitse bezetters te voorkomen, maar ze kwamen hier terecht. Ook het huis op nr. 29 liep schade op, nog te zien aan de herstelde balken in de achterste kamer op de bovenste verdieping. 

Smalle overkapping in middenschip 
Na de teloorgang van de kerkelijke functie van de Mariakerk, kwam tegen de zuidbeuk aan, in het vroegere middenschip een smalle overkapping die gedurende de volgende eeuwen verschillende functies had: in ieder geval was het in de 
tachtigjarige oorlog opslagplaats (“arsenaal”) voor wapens, en stonden er kanonnen. Deventer was immers hevig strijdtoneel van de gevechten tussen de Spanjaarden en de Staatsen. Ook is de overkapping een stal geweest voor de 
paarden van de cavalerie. De paarden werden overigens ook in de oude Mariakerk zelf ondergebracht. 
In de negentiende en begin twintigste eeuw was er de brandweerkazerne gevestigd: de bluskarren konden door de grote poort bij het (huidige) restaurant Het Arsenaal snel de oude binnenstad in. In de glorietijd van de Mariakerk was hier een toegang tot de kerk, naast het toegangsportaal waar momenteel een antiekwinkel is 
gevestigd. 

Nieuwe allure binnenplaats/middenschip 
De binnenplaats tussen de huizen en het restant van de kerk - dus het oorspronkelijke binnenschip van de Mariakerk - verrommelde allengs: de vloer raakte bedekt met onkruid. De gemeente en de RK kerk hadden geen geld over voor onderhoud. En ook hier was het zichtbaar dat het in de hele binnenstad van Deventer geleidelijk ‘armoe troef’ was geworden.  Het duurde tot eind 2025 tot de beheerder van de plaats, de Maatschappij tot Stadsherstel Bergkwartier, de binnenplaats liet restaureren naar het oorspronkelijke uiterlijk. Her resultaat geeft de huizen momenteel extra allure, maar laat geen particuliere gebruiksfunctie meer toe voor de aanwonenden.  Het pand nr.29 heeft als enige huis toegang tot de binnenplaats.

Van afbraak naar herstel
Na de tweede wereldoorlog zag het bestuur van Deventer vooral afbraak en vervolgens nieuwbouw als oplossing voor de - door allerlei redenen - verpauperde stad. Maar dat was buiten de opvattingen en daadkracht van de Deventer bevolking gerekend. Het Bergkwartier werd geleidelijk opgekocht door een groepje vermogende inwoners die de historische waarde van de stad wilden herstellen. Dat lukte via een langjarige en visionaire planning, die sindsdien veelvuldig geroemd en bekroond is. In het Noordenbergkwartier, waarvan de Nieuwe Markt de zuidelijke rand vormt, waren het vooral de bewoners die voor renovatie, behoud van historische waarde zorgden en daarmee ook aanzienlijke stijging van de economische waarde van de huizen. Dit proces werd in 2024 bekroond met een volledige vernieuwing en opwaardering van de Nieuwe Markt. Voor de inwoners van Deventer en de vele bezoekers (die veelal de IJssel oversteken met het bekende pontje) is de Nieuwe Markt een prachtig visitekaartje van de stad 
geworden. 

Splitsing van het pand 
Het pand met de huidige nummers 28-29 werd gesplitst in twee woonhuizen, zoals blijkt uit een notariële akte van 15 mei 1956. De scheiding was wel een beetje merkwaardig: een strook met een breedte van 1.50 vanaf het midden tot en met de achterkant van het pand nr. 28 werd aan nr. 29 toegevoegd, met “eeuwig gebruiksrecht”. In dit deel bevindt zich nu een royale toiletruimte, daarachter een ruimte die verschillende functies gehad, zoals badkamer en momenteel wasmachineruimte annex extra toilet. Tenslotte de ruimte die vanuit het achterplaatsje bereikbaar is als berging en technische ruimte. 

Bouwtechnisch herstel 
Rond de laatste eeuwwisseling werd het huis eigendom van een architectenechtpaar dat het huis weer in goede bouwtechnische staat bracht. Heel bijzonder: het oorspronkelijke hijsrad, zelfs met het oorspronkelijke hijstouw is nog 
steeds intact. Zij exploiteerden bovendien een bed-and-breakfast op de begane grond en woonden zelf op de bovenste verdiepingen. Sinds 2017 wonen wij met trots in dit huis. Wij voelen ons nauwelijks eigenaar: vooral vinden wij ons in de rol van oppasser op dit prachtige huis. Wij leenden het een tijdje van de Deventer geschiedenis, hebben er goed voor gezorgd en geven het met veel genoegen door aan de volgende bewoners.

Kenmerken