Beschrijving

Voor mensen die graag net even buiten de gebaande paden treden en nét even iets anders willen wonen is nu een perfect huis te koop! Architect Mario Botta tekende voor het ontwerp.

In 2005 zijn deze bijzondere huizen aan de rand van de binnenstad van Deventer gebouwd, met de tuinkant gericht naar de gracht die daar loopt. Het zijn huizen met een stedelijk karakter, hoge plafonds, corridors met zichtlijnen, spannende lichtinval. Natuurlijk wil je privé buiten kunnen zitten, maar geen groot tuinonderhoud alstublieft, want je wilt je tijd besteden aan werk, sport, kunst en cultuur. 

Onder maaiveld bevindt zich een afgesloten parkeergarage met een elektrisch bedienbare toegangsdeur waar twee eigen parkeerplaatsen zijn. Hier beneden is ook een berging van 25 m2, royaal genoeg voor de fietsen, de wijnvoorraad, de sportspullen en wat je nog verder zou willen opslaan. Via een trap kom je op begane grondniveau en ben je praktisch al bij de voordeur.

Het bijzondere interieur van dit stadspand laat zich niet makkelijk vangen in woorden, alle praktische zaken die je in andere huizen tegenkomt zijn hier ook, maar dan echt anders. Verrassend, ruimtelijk en door de huidige eigenaars strak en stylish afgewerkt. Ik doe een poging om de werkelijkheid te benaderen in deze omschrijving.

De entree ligt onder het overstek van de tweede verdieping. Hier is de hal met het toilet. Je loop dan het woonvertrek binnen en je blik wordt meteen gevangen door een blauw-stalen trap en een twee verdiepingen hoog plafond boven de eetkamer met zicht op de open balustrades. Prachtig! Vooral hoe het licht hier binnenvalt en zachte schaduwen werpt op wanden en plafonds. Aan de voorkant van het huis is de keuken. Deze is luxe (Bulthaup), wit, praktisch en voorzien van de apparatuur die je wilt gebruiken. Hier is ook weer de hand van de architect zichtbaar die ervoor zorgt dat je vanuit de eetkamer niet op de potten en pannen kijkt: de keuken ligt net met een knik afgebogen naar links. Wel open, geen inkijk.

De gietvloer die in het hele huis is toegepast, brengt de verschillende ruimten mooi samen. Aan de terraskant van het huis ligt de zitkamer met uitzicht over het eigen terras, het gazon en de verder naar achter gelegen bebouwing van De Boreel.
In de middag komt de zon aan deze kant van het huis en geeft dan ook hier een warme lichtinval. Achter het huis is een gazon tot aan de gracht waar niet of nauwelijks mensen lopen. Lekker rustig en veel privacy.

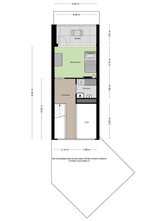
Op de eerste verdieping zijn drie kamers waarvan twee aan de voorkant liggen en een aan de achterkant. De achtergevel heeft op elke verdieping een terras dat vanuit de aangrenzende kamer te bereiken is. 
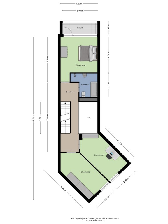
De luxe badkamer heeft een design-inrichting met een wastafelmeubel, een ligbad, een inloopdouche en een toilet.
"Overloop" is eigenlijk een understatement in dit huis. Hier loop je over een corridor met fraaie, plafondhoge maatwerkdeuren naar de verschillende kamers en kijk je door de vide naar de andere verdiepingen.

De tweede verdieping is even strak en mooi afgewerkt als de rest van het huis. Met de speciaal voor dit huis gemaakte stalen trap naar boven, de bijzondere "overloop" met zicht naar beneden en aan de voorkant een gevel met veel glas.
Aan de achterkant is de vierde slaapkamer met ook weer een eigen terras. 
Hier bovenin het huis is ook de berging met daarin de c.v. ketel, het WTW ventilatiesysteem (2024) en de aansluiting voor de wasapparatuur.

Deze woning maakt samen met de aangrenzende 9 andere woningen deel uit van een VVE. De maandelijkse bijdrage is € 190, 69 dat bestemd is voor onderhoudsreserve voor huis en garage en de gezamenlijke opstalverzekering. De VVE wordt professioneel beheerd door Portalis VVE beheer Deventer.

Kenmerken