Beschrijving

Vanwege zeer veel belangstelling voor dit huis verzoeken wij u alleen nog per mail te reageren.

Het huis met de twee woonkamers!

Deze vrijstaande stadsboerderij dateert uit 1885 en staat middenin de wijk Voorstad. Een wijk die, zoals de naam al zegt, vlak voor de binnenstad van Deventer ligt. Je woont hier dus vlakbij het station, winkels, scholen, uitvalswegen maar vooral in een hele leuke buurt. Wat er dan zo leuk aan is? Om te beginnen de mensen de er wonen, heel gemêleerd: jong, oud, gezinnen en mensen die het huis voor zichzelf hebben. Er zijn meerdere groenvoorzieningen die de bewoners zelf geïnitieerd hebben op kale plekken. Je kunt er nu samenkomen, meehelpen tuinieren als je wilt, spelen en de wijk is er lekker groen door geworden. Op het perceel van onze stadsboerderij zelf valt niet veel werk te verzetten qua tuin. Het grootste deel is bebouwd, want er is veel woonruimte. De tuin is vernuftig ingericht met terras, een hoge haag en leuke zitjes en heel veel privacy. Geen akker te onderhouden, dat is het verschil tussen een stads- en een landboerderij.

Dit is nu echt een woning waar iedereen wel zou willen wonen. Het is groot (231 m2 woonoppervlak) heel sfeervol én je kunt in dit huis met twee woonkamers ook nog eens wensen in vervulling laten gaan die niet overal te realiseren zijn:
werken/praktijk aan huis, een atelier, een gezinslid dat een eigen plek wil of een B&B, bedenk het maar. Bijna alles kan.

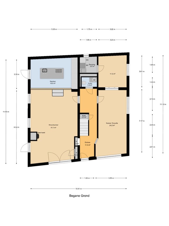
Middenin het huis is een flinke hal met mooie vloertegels, de trap naar boven en een ruim, modern toilet.

Linksaf is een waanzinnige woonkamer, ooit de deel, met een gietvloer met vloerverwarming en enorme deuren waar het zonlicht lekker door naar binnen valt. Je wordt hier gewoon vanzelf vrolijk, zonder enige moeite kan je je voorstellen dat hier menig feestje gevierd wordt. Op het "podium" is de keuken met een kook/spoeleiland en veeeeel kastruimte. In het podium is een verrassing ingebouwd: een professionele muziekinstallatie! Een feest voor je oren en hé, je woont hier vrijstaand, dus het volume mag soms best iets hoger. Van uit de keuken loop je de besloten terrastuin in. De tuin ligt heel gunstig, precies aan de zuid- en westkant van het huis. Al vroeg in het jaar kan je hier lekker buiten zitten. Net als het hele huis is ook de tuin prachtig ingericht. Precies wat je wilt, lekker genieten en weinig onderhoud.

Ga je vanuit de hal rechtsaf, kom je in een kamer en suite met schuifdeuren en glas in lood! Ja echt, hier is woonkamer 2. Achterin de achterkamer is een bijkeuken met de aansluiting voor wasapparatuur en een wastafel. 

Op de eerste verdieping zijn twee lichte slaapkamers, beide met lekker ruime ingebouwde kasten. De badkamer heeft vloerverwarming, een wastafelmeubel, een ligbad, en een inloopdouche. Op de overloop is een apart toilet, dus nooit stress in de ochtendspits.

De tweede verdieping is een Walhalla voor kids, je raakt hier niet uitgekeken op alle "geheime" bergplekken. Ooit had dit huis een heel andere kapvorm. Door een ingenieuze verbouwing zijn de twee afzonderlijke daken met elkaar verbonden en daardoor heb je nu deze kanjer van een verdieping met drie slaapkamers, een overloop en verschillende bergruimten waarin je bijvoorbeeld ook prima kan gamen zonder lastig gevallen te worden. Eén van de slaapkamers heeft zelfs een leuke bedstee, een andere heeft een eigen wastafelmeubel.

De verduurzaming is ook hier flink op gang. Energielabel C is al een knappe prestatie voor zo'n historisch huis en als je wilt zou je nog meer kunnen doen. De energiekosten zijn hier al heel keurig, mede door de 14 zonnepanelen en de bijverwarming door de pelletkachel in de woonkamer.

Wij hebben enorm veel zin om dit heerlijke huis te laten zien, wie wordt de nieuwe eigenaar? Jij? Welkom!

Kenmerken