Beschrijving

Vrijstaand en zeer energie zuinig woonhuis uit 1954 in de Zwolsewijk, vlakbij winkels, scholen en op vijf fietsminuten van de binnenstad. Het huis heeft de strakke contouren die kenmerkend zijn voor de jaren 50. In 2015 heeft er een flinke verbouwing plaatsgevonden waarbij o.a. de keuken is aangebouwd en het huis is verduurzaamd naar een energielabel B! De Longoliusstraat is een zijstraat van de Zwolseweg, een brede straat waar de huizen diepe voortuinen hebben. 

"Een huis zoals een kind een huis tekent", rechte lijnen, witte gevels, een rood pannendak met schoorstenen. Rondom het huis ligt een mooie tuin met een achtergevel op het zuiden. Hier is een beschut terras, een gazon en vooral veel privacy. De vrije ligging is er door het groen van de buurtuinen en het achtergelegen plein met garagebergingen. Dat is pure luxe in een woonwijk!

Kom binnen in dit lichte en comfortabele huis. De hal is betegeld, heeft een flink zijraam, toegang tot een ruime kelder en een trap naar de verdieping. Onder de trap is het toilet en een berging.
De woonkamer is een feest van lichtinval doordat de kamer grenst aan alle vier de gevels van het huis en er ook in al die gevels ramen zijn! Heel uniek en heel speels. De zithoek is aan de voorkant van het huis waar een erker met een brede vensterbank zorgt voor een leuke uitstraling. In 2015 is de keuken aan het huis gebouwd en daardoor heeft de woonkamer een speelse indeling gekregen. De doorzonwoonkamer heeft nu een T-vorm, waardoor er een leuke hoek is ontstaan die zich prima leent voor bijvoorbeeld je piano, een werkplek of speelruimte voor kinderen. Aan de achterkant van de kamer zijn openslaande deuren gekomen die je met mooi weer meteen opgezet. Deze kant van het huis ligt immers op het zuiden, dus al vroeg in het jaar kan je hier lekker beschut op het terras zitten.
De keuken is, zoals gezegd, in 2015 aangebouwd. Het is een moderne ruimte, ook hier weer veel lichtinval. De zachtgrijze keuken heeft een frisse uitstraling en uiteraard de benodigde inbouwapparatuur. Er is ook genoeg ruimte voor een ontbijttafel, heel gezellig!

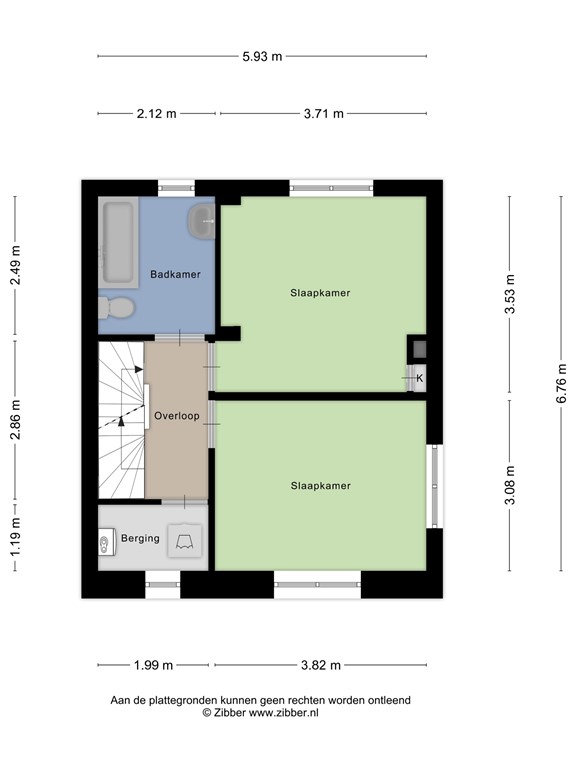
Op de eerste verdieping zijn twee ruime slaapkamers. In de jaren 70 is een van de (destijds drie) slaapkamers herbestemd tot badkamer. Deze badkamer is er vandaag de dag nog steeds en nu dus een mooie tijdcapsule. Hij functioneert prima, maar mocht je niet van retro houden dan is het tijd voor vervanging. De oorspronkelijke badkamer/douche is nu de ruimte voor de wasmachine geworden.

De tweede verdieping heeft een overloop met wastafel, een ruime berging waar de c.v. ketel en de omvormer van de zonnepanelen hangen. De verrassing is de grote slaapkamer die, je raad het al, heel licht is. De kamer is hoog, er is goed gebruik gemaakt van de vorm van het dak.

Graag vertel ik ook iets over de verduurzaming van het huis.
De spouwmuur is gevuld met PS parels. De buitenmuren zijn daarom met een speciale, dampdoorlatende verf geschilderd. Dat is belangrijk voor een gezond binnenklimaat.
In de kozijnen en ramen is HR++ glas geplaatst. In de woonkamer hebben de nieuwe openslaande deuren triple glas, met goede zon doorlatende eigenschappen. De eethoek is nu een heerlijke, comfortabele plek met uitzicht op de tuin.
De woonkamer wordt geventileerd met warmte terugwinning middels een Climarad unit. Daardoor blijft alle warmte behouden, en toch is er altijd gezonde en frisse lucht. De slaapkamers, bad en toilet worden geventileerd met mechanische ventilatie op een CO2 en vocht sensor. De 15 zonnepanelen compenseren het elektriciteitsverbruik ruimschoots. De nieuwe aanbouw met daarin de keuken heeft een isolatie Rc=8, waardoor een radiator niet nodig bleek om de keuken warm te houden. 

Rondom het huis ligt een mooie tuin pal op het zuiden met een vrijstaande fietsenberging. Interesse in deze bijzondere woning? Bel ons voor een bezichtiging, je bent van harte welkom.

Kenmerken