Beschrijving

Dit is nu een huis dat je waar je meteen op valt als je RUIMTE wilt. Ruimte om te zijn, te koken, te slapen , te spelen. Ruimte voor een grote bank waar al je liefsten royaal kunnen zitten, een grote eettafel om avonden aan te eten en te praten. Voor iedereen een grote slaapkamer en ook een lekkere badkamer waar je je in kunt terugtrekken als je alle drukte even wilt ontlopen. Een tuin met een overdekte buitenkeuken, een garage en een carport. Dit huis heeft het. Allemaal.

Doornweerd 14 ligt in Randerwaard, een kleine wijk die rond 2008 is gebouwd aan de rand van de stad. Het zijn nagenoeg de laatste huizen voordat je de dijk oprijdt richting Olst. Perfect dus, de ene kant op ben je in de uiterwaarden van de IJssel, ga de de andere kant op, fiets je met vijf minuten naar de binnenstad van Deventer.

De voortuin heeft genoeg ruimte voor een trampoline, maar ben je niet zo springerig is het ook een lekkere plek om in de zon te zitten. De straat heel rustig want er rijdt alleen bestemmingsverkeer. Aan de overkant van de straat wonen geen buren, daar is een groene wal met Drijvers Tennisvereniging erachter. Voor wonen de stad is dat wel optimale privacy! De voortuin heeft een inrit voor de garage en de carport, ook ruimte voor je auto's dus.

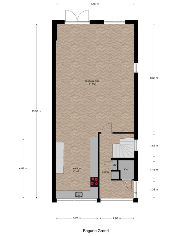
Kom binnen, er is een flinke hal met een toilet, berging en de trap naar de verdieping. De woonkamer is zoals beloofd echt heel ruim, maar liefst 51 m2 zonder de keuken meer te rekenen. Er ligt een massief eiken plankenvloer op de grond die is doorgetrokken in de hal en de keuken. Eenheid geeft rust. De achtergevel heeft glas tot op de vloer en openslaande tuindeuren. Ramen in de zij- en voorgevel zorgen ervoor dat de hele begane grond toch heel licht is. Waar van oorsprong de trap naar boven in de woonkamer stond, hebben de huidige eigenaars de hal vergroot en een deur met glas geplaatst. Dat scheelt in de stookkosten en het geluid van gezinsleden blijft op de verdieping waar het geluid gemaakt wordt. Door deze ingreep werd de keuken groter, dus daar is in 2024 een hele nieuwe keuken geplaatst. Een prachtige kwaliteitskeuken met een granito aanrechtblad, uitgebreide inbouwapparatuur en veel kastruimte. Er is ook een airco-unit geplaatst, lekker in de hete zomers en ook lekker als elektrische bijverwarming. Als er elektrisch wordt gekookt én (bij)verwarmd/gekoeld, is het ook tijd voor zonnepanelen. Die liggen nu op het dak, heel duurzaam.

Vanuit de woonkamer loop je de achtertuin in. De praktische tuin biedt privacy en ligt op het noord/oosten. Omdat je daar de middagzon vol in de tuin krijgt, is er een royale terrasoverkapping/veranda gebouwd met daarin een buitenkeuken met een Green Egg barbecue!

Op de verdieping zijn drie slaapkamers en een droombadkamer. Een grote ruimte met een dubbel wastafelmeubel, een inloopdouche met twee douches en een toilet. In deze badkamer word je helemaal zenn na een dag hard werken: dim de verlichting, loop met je vloerverwarmde voetjes naar de douche en spoel de drukke dag van je af. Lekker hoor, nu ben je weer helemaal klaar voor een gezellige bbq in je tuin.

De tweede verdieping is ook zo ruim, wat een grote overloop. Je kunt hier makkelijk nog een werkplek maken. Er zijn twee grote slaapkamers die nu zo zijn ingedeeld dat je de tweede kamer via de eerste kamer bereikt. Tot besluit is er dan ook nog een vliering, mocht je daar nog spullen voor hebben.

Dit huis is in 2008 gebouwd en is dan ook goed geïsoleerd: energielabel A. Zou jij graag in een jonge wijk willen wonen en ook graag dichtbij het centrum van de stad? En dichtbij de IJssel en het wandelgebied door de bossen van Diepenveen en Olst? Nou, dit zou het dan wel eens heel goed hét huis kunnen zijn. Welkom!

Kenmerken