Beschrijving

Wat een mooi gebouw, deze drie woningen die bovenaan de Diepenveenseweg gebouwd zijn in 1930. Het huis in het midden heeft een fiere gevel die trots omhoog piekt. En terecht, want wat een prachtige woning schuilt erachter. Het huis is tot in de puntjes afgewerkt en met veel liefde bewoond. De originele wandtegels in de hal en trapopgang, het glas in lood in de ronde erker en in de schuifdeuren, het mooie cassettenplafond, dat is er allemaal nog en het lijkt wel als nieuw.

De jaren dertig hebben hier bepaald niet stilgestaan, want ondanks de bewaarde stijlelementen is dit een zeer comfortabel en modern huis geworden. Wat opvalt is de ruimte, met een vloeroppervlak van bijna 170 m2 waarvan 158 m2 woonoppervlak, heb je een royaal huis dat als een warme jas om je heen valt. De besloten achtertuin met overkapping en achterom is over een paar weken een groene oase, waar je niet al te druk mee hoeft te zijn. 

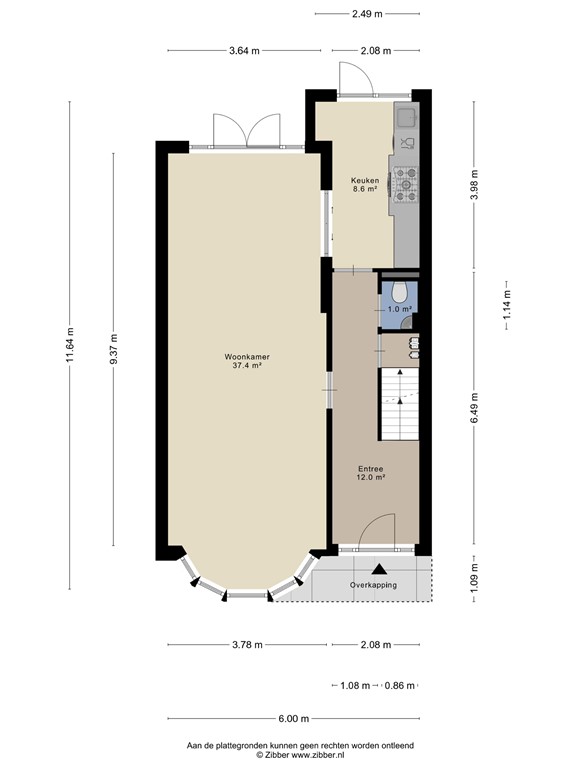
De voordeur ligt beschermd onder een royale overstek. Glas in lood rondom en een granito opstapje, u bent gewaarschuwd, de jaren 30 dienen zich hier al aan. In de hal zijn de kleuren van vloer en wandtegels al 100 jaar geleden op elkaar afgestemd en de bewoner heeft er een uitstekend gevoel voor om dit nog weer te fine-tunen met de inrichting.

In de hal is het toilet en de toegang tot de praktische kelder. Vanuit de hal is een deur naar de keuken en uiteraard ook een naar de woonkamer. De ronde erker aan de voorkant van de woonkamer zorgt voor veel licht, maar geeft ook een heel ruim zicht op de straat waar de bebouwing op flinke afstand staat. Aan de achterkant open slaande tuindeuren waardoor in de ochtend het vroege zonlicht binnenvalt. Schuifdeuren met glas in lood in ruitvorm scheiden woonkamer en keuken, al staan ze meestal open. De keuken is het aanzien namelijk meer dan waard: Een stoere, degelijke keuken die goed past bij het huis. Moderne uitstraling en inbouwapparatuur en met het granito aanrechtblad wordt er toch weer een knipoog naar het bouwjaar gegeven.

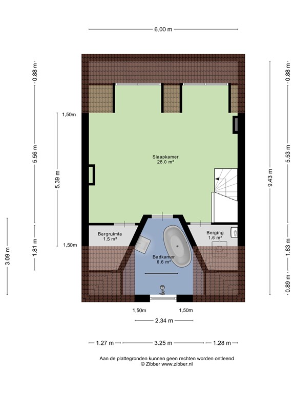
Op de eerste verdieping zijn drie slaapkamers met veel ingebouwde kastruimte en een luxe badkamer met balkon. Er is een mooi wastafelmeubel en een inloopdouche achter een glaswand. Geen toilet hier, dat is op de overloop. En als je in bad wilt liggen, zelfs met een ontspannend bubbeltje, moet je een verdieping hoger zijn. De tweede verdieping herbergt namelijk een heerlijke plek met een hoog "loft-gehalte".

Bovenin het huis is echt een geweldige kamer, een serene ruimte met een hoog plafond. Het vele licht valt binnen door twee grote dakkapellen. Deze slaapkamer heeft de uitstraling van een luxe loft, er is een tweede badkamer met een vrijstaand bubbelbad, een inloop(regen)douche en een wastafelmeubel. Naast de badkamer is een berging en ook is er een aparte ruimte voor de wasmachine.

De achtertuin ligt op het zuid/oosten en is zo ingericht dat je optimaal van buiten zijn kunt genieten zonder dat je er veel werk aan hebt. Achterin de tuin is een schuur en een mooie terrasoverkapping. Ook aan het einde van de middag pak je hier de zon nog lekker mee, zeker als die in de zomer weer wat hoger staat. Fietsen en containers kunnen via het achterpad van- en naar de straat. Je auto kan je voor de deur kwijt, in dit deel van de stad mag je vrij parkeren.

Het huis heeft een energielabel D, niet slecht voor een huis van deze leeftijd. Wat verduurzaming betreft kan je hier nog een stap maken, bijvoorbeeld met vloerisolatie en zonnepanelen. In 2024 is er een nieuwe CV ketel geïnstalleerd, dus dat is voorlopig niet meer aan de orde.

De Diepenveenseweg is een straat die al heel lang de binnenstad van Deventer verbindt met (je raadt het al) Diepenveen. Je woont hier vlakbij de binnenstad, het station, bij supermarkten maar ook ben je zo de stad uit. Lekker wanden in het bos.

We bieden een zeer goed onderhouden, ruim en mooi jaren 30-huis aan met een fijne tuin. Heb je interesse? Welkom!

Kenmerken