Beschrijving

In 2004 zijn in in de Bergpoortstraat mooie appartementen mét een parkeergarage gebouwd in de stijl van het industriële erfgoed dat zo kenmerkend is voor de Raambuurt. Deze wijk ligt in het centrum van de stad en van oudsher was dit een industriegebied. Rond het jaar 2000 is het gebied helemaal gesaneerd en vervolgens ingericht als woonwijk met een combinatie van oude- en nieuw gebouwde woningen. De ligging van de wijk, zo naast de binnenstad en bij de IJssel, en ook de diverse bebouwing, maakt het een hele populaire woonwijk voor diverse doelgroepen. Jong en oud, gezin of niet, iedereen vindt hier een plek van zijn gading. Juist die diversiteit maakt het zo'n fijne plek om te wonen.

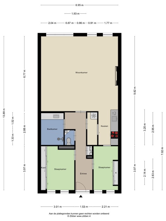
Op de eerste verdieping van het appartementengebouw De Grutterij (naar de vroegere bedrijfsactiviteit) is een heel gaaf ingericht appartement te koop van 96 m2. De eigenaar heeft de industriële omgeving als het ware vertaald in het interieur; De stoere stalen balk in de woonkamer, de stijlvolle grijze vloer die de ruimte een moderne uitstraling geeft en als grappige knipoog de oude stoppenkast die nu lichtschakelaars zijn!

Maar kom binnen, we laten je graag alles zien!
Achter de voordeur is een lange gang waaraan meteen aan het begin twee slaapkamers grenzen, één van 12 m2 en één van 9 m2. Beide kamers hebben een vaste kledingkast. Aan de gang grenst ook het toilet en de badkamer. Deze beide ruimten zijn sober en strak ingericht met een knipoog naar de industriële geschiedenis. 

Dan de woonkamer! De woonkamer biedt 47 m2 leefruimte, dat is wel erg fijn! Wat dit appartement bijzonder maakt, is dat er een wand is weggehaald die in andere appartementen een loggia van de woonkamer afscheidt. Je kunt de schuifdeuren natuurlijk nog steeds lekker openzetten en dan is er -gelukkig- een glazen balkonhek. De ramen liggen goed op de zon en dat maakt het een heerlijk lichte ruimte. De appartementen liggen rond een binnentuin die aan een kant grenst aan de gracht. Het uitzicht is dan ook heel leuk en heel rustig, zeker voor stedelijke begrippen.
De open keuken is strak en doelmatig; alles wat je nodig hebt is er: Een SMEGfornuis met inductiekookplaat en oven. Er is een SMEG lady vaatwasser en koel/vriescombinatie.

In de onderbouw is een eigen parkeerplaats in een afgesloten parkeerkelder. Hier is ook je eigen fietsenberging. Gegarandeerd je auto én je fiets kwijt kunnen in de stad, dat is pure luxe. Het hoort er allemaal bij als je aan de Bergpoortstraat 109 gaat wonen.

Er is een goed beheerde vereniging van eigenaars, de VVE. Je betaald een maandelijkse bijdrage van € 164,- en dat is bestemd voor o.a. de opstalverzekering, de reservering voor onderhoud van het gebouw en de lift, schoonmaak van de algemene ruimten, dagelijks onderhoud zoals bv een lamp vervangen etc. Dat is ook heel gemakkelijk, nooit na hoeven denken over de schilder of iemand moeten bellen als bv. de garagedeur niet goed werkt. Het wordt allemaal voor je gedaan.

Interesse? Bel/mail ons voor een afspraak, welkom!

Kenmerken